Tiny Home Distribution Covering United States and Canada
Tiny Home Distribution Covering United States and Canada


◦ Sleeping Accommodations 4-8
◦ Awning Size 16'
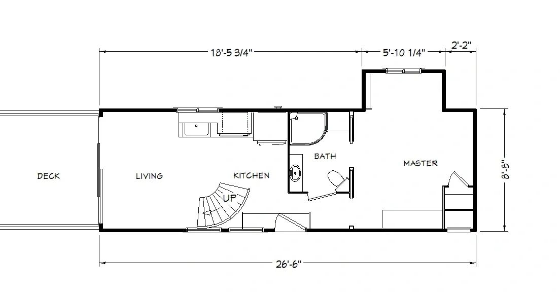
◦ Length 26' 6"
◦ Width (Exterior) 8' 8""
Copyright © 2020 Fusion Concepts Inc. - All Rights Reserved.
Prices may be changed at any time without further notice. We reserve the right to change our product's prices at any time without further notice. Prices listed in any other websites may not be accepted. We sell our products through a number of different online channels and we cannot always control when they are updated. We reserve the right not to accept a price listed on a site other than our own.
Powered by GoDaddy Website Builder